Kvalitní ukázkou současné havlíčkobrodské vilové výstavby je jednogenerační rodinný dům manželů Křehlíkových, který vznikl ve svahu s výhledem do údolí potoka Žabince. Stavební parcela s poměrně složitým terénem nabízela stavebníkům možnost realizace domu v klidné lokalitě takřka venkovského charakteru, přesto však nedaleko centra Havlíčkova Brodu. Budova s obytným prostorem v druhém nadzemním podlaží zároveň umožňovala zajímavé vizuální propojení interiéru s okolní přírodou.
Základní koncept osazení domu do terénu, návrh finální dispozice i vlastní projekt si majitelé zpracovali sami. Architektonickou studii a vizuální podobu svěřili architektovi Milanu Stejskalovi z havlíčkobrodského Atelieru 02, s nímž profesně spolupracovali a jehož tvorba a výtvarný názor jim byly blízké.
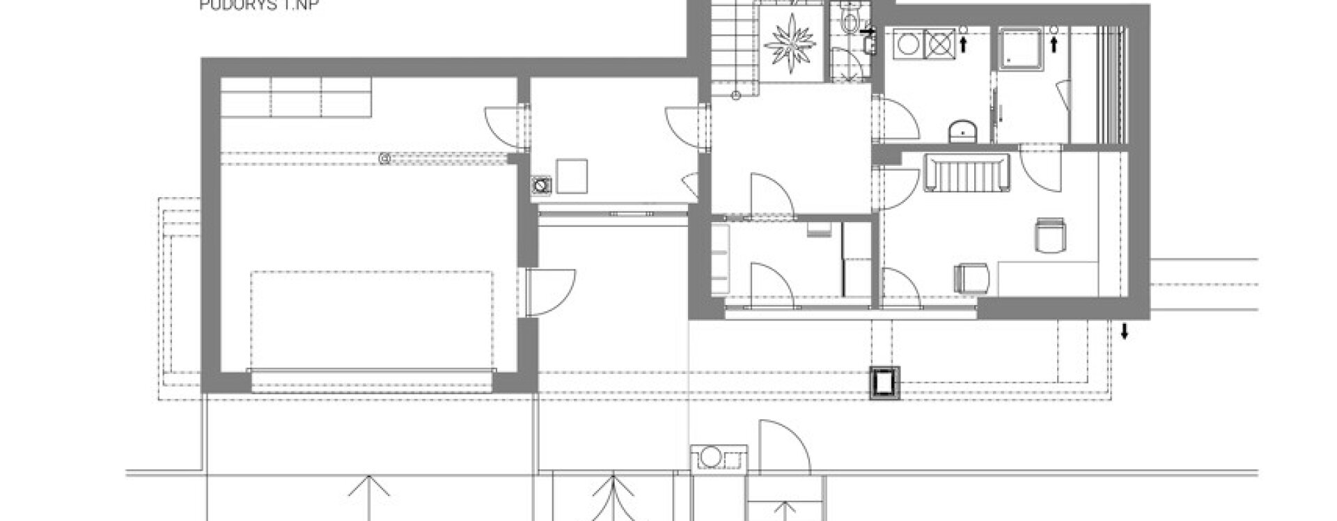
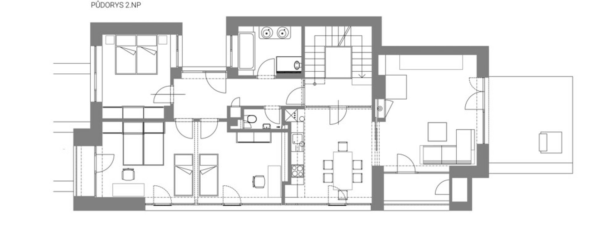
Zrealizována byla dvoupodlažní budova s přízemím částečně zapuštěným do svažitého pozemku. Stavbu v druhém nadzemním podlaží vizuálně tvoří dvojice k sobě přiléhajících kvádrů s prosklenou čelní fasádou, obloženou sibiřským modřínem, a plochou střechou. Druhé nadzemní podlaží využívané k obytným účelům je vystavěno z keramických bloků. První nadzemní podlaží slouží především jako technické zázemí objektu a je z monolitického železobetonu. Obě úrovně propojuje schodiště s hlavní stěnou osazenou vertikální zelenou zahradou a prosvětlené střešním oknem umístěným do zděného pultového nadsvětlíku.
Účelně řešená dispozice s chodbou propojující jednotlivé obytné prostory umožňuje přístup z terasy na nevelkou zahradu sloužící k odpočinku majitelů, která byla vytvořena přesvahováním pozemku a zřízením svislé gabionové stěny. Spolupráce architekta s osvícenými investory umožnila vznik kvalitní a účelné stavby na atypické parcele v klidné části Havlíčkova Brodu nedaleko městské přehrady.
Aleš Veselý, 2025
Prameny
Osobní rozhovor s Lenkou a Pavlem Křehlíkovými. 7. 8. 2025.
Městský úřad Havlíčkův Brod, archiv Stavebního úřadu. č. p. 4050.




















