The architectural face of Uherské Hradiště was also shaped by the buildings of the interwar modernism, which brought new spatial, structural and aesthetic principles to the historic city. The architect Bohuslav Fuchs also made a significant contribution to this, as he developed several different projects for the city and private investors, several of which were implemented. His first project was the reconstruction of part of the Praga Palace for the needs of the city savings bank. The Uherské Hradiště Savings Bank acquired the palace in a foreclosure auction on September 13, 1933, and its intention was to set up offices in its commercial premises and rent out other parts of the building. The Praga Palace complex was built from 1930 on the site of the part of the Fürst Malt Mill that had burned down two years earlier by a local businessman and deputy mayor, Antonín Keller. According to contemporary reports, he invested 2,200,000 crowns in the creation of the commercial palace and adjacent car workshops, a car factory warehouse and a residential building. It was the Keller company that re-leased part of its original building with workshops and warehouses from the new owner – the city savings bank – and continued to operate a car showroom there.
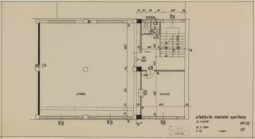
In 1933, the then director of the savings bank, Ladislav Červinka, asked architect Bohuslav Fuchs to design the adaptation of the palace's business premises for the needs of the financial institution. Fuchs was able to use his previous experience with similar assignments in the project, as in the early 1930s he had built several buildings for financial institutions in smaller towns – savings bank buildings in Třebíč and Tišnov (both in collaboration with Jindřich Kumpošt), but his most significant building for the financial institution was the Moravian Bank building (together with Ernst Wiesner) on the main square in Brno. The interior of the Uherské Hradiště insurance company features polished white marble cladding and a counter hall, similar to that of the Moravian Bank. Other office spaces were furnished with contemporary furniture and polished metal steel lighting. In addition to new furnishings, the architect also designed a new functional member space, which he supplemented with a newly built communication staircase in the shape of a semicircle whose walls were built of glazed bricks. A bank vault was located in the foundations under the staircase. And for security reasons, the walls of the financial institution adjacent to the car dealership or apartment building were also reinforced. Fuchs intervened less in the form of the street facades, leaving their original, very modern division. The mass of the facades was lightened by pillars, which allowed the lower commercial floor to be generously glazed and the second floor to be partially recessed, which is thus copied by a continuous loggia. This solution was originally also used in the part of the building on Na Morávce Street, used as a car dealership. The lightening of the building's mass is also contributed by the offset of the top floor, whose pediments copy the rhythm of the pillars of the lower floors. The roof terrace above the car dealership was originally also accessible from the third floor.
For the needs of the savings bank, architect Fuchs designed a new entrance from Všehrdova Street, accented with travertine cladding and an elliptically curved awning. Fuchs's design also included a new solution for the entrance of the neighboring apartment building, which was connected to the savings bank building, in the form of a simple glass door accented by a nautical window.
Modifications to the savings bank and neighboring buildings were already made at the end of the 1930s, when the part with the car dealership was moved up one floor and thus lost its roof terrace. And further changes were brought about by the reconstruction at the end of the last century for the needs of the Czechoslovak Commercial Bank, which is still located there today, during which the ground floor of the building was plastered darkly, which disrupted the original aesthetic concept of optical lightening of the facades.
Lucie Valdhansová
Literature
Iloš Crhonek. Architekt Bohuslav Fuchs. Celoživotní dílo. Brno, Petrov, 1995.
Zdeněk Kudělka. Bohuslav Fuchs. Praha, NČSVU, 1966.
Meziválečná architektura v Uherském Hradišti. In: Umění : The Art : časopis Ústavu dějin umění Akademie věd České republiky. Praha, Ústav dějin umění ČSAV, 1996, p. 348–353. ISBN 0049-5123.
ŘÍHOVÁ, Vladislava a KŘENKOVÁ, Zuzana. Funkcionalistické lázně v Uherském Hradišti ve světle stavebněhistorického průzkumu. In: Slovácko: společenskovědní sborník pro moravsko-slovenské pomezí. s. 246. ISBN 0583-5569.














