Výstavba letišť a letištních objektů tvořila ve 2. polovině 30. let 20. století důležitou součást protiněmecké obranné strategie československého státu, navazující na diplomatická jednání, z nichž vzešlo několik mezinárodních úmluv o pomoci Československu v případě napadení (1935, Francie a Sovětský svaz). Plánované vybudování osmi letišť v českém vnitrozemí bylo v období hospodářské krize zároveň mimořádnou příležitostí, jak napomoci místním firmám a zvýšit zaměstnanost v regionu.
Na tuto možnost zareagovalo také město Německý (Havlíčkův) Brod, vedené starostou Ludvíkem Marešem (zástupcem živnostenské strany), které již 23. 5. 1936 zaslalo ministerstvu národní obrany dopis, v němž potvrzuje zájem o vybudování letiště.
Reakce netrvala dlouho – již v září 1936 byla zakázka Brodu přidělena. V zájmu podpory zaměstnanosti ve městě si samospráva prosadila důležitou podmínku, že stavbu zrealizuje některá z místních stavebních firem, „i kdyby byli o 3% dražší“. Okamžitě se začalo s přípravami. Pracovalo se také na splnění ministerského požadavku zajistit vhodné ubytování nově příchozím „gážistům“, pro které se stavěly dnešní nájemní domy č. p. 578 a 579 v Sázavské ulici, dokončené v roce 1938 stavitelem Eduardem Nedbalem.
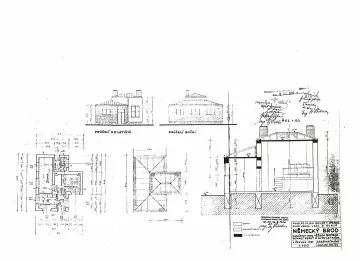
Projekt kasáren a letiště v severozápadní části města v těsné blízkosti železniční trati byl připraven v červnu 1937 architektem Janem Gillarem (1904–1967), Gočárovým žákem. Jeho úkol tkvěl převážně ve výtvarném pojetí a detailnějším rozpracování jasně definovaných armádních požadavků, které zaštiťoval vojenský inženýr a stavební ředitel, pplk. Jan Junek.
Zadání bylo pro Jana Gillara ideální příležitostí, jak v neomezené míře prosazovat ideály vědeckého funkcionalismu, jehož byl stoupencem. Předpokládaná částka na realizaci dosahovala enormních 3 milionů korun. Stavební práce započaly v říjnu 1937 a již během roku sílil tlak na dostavbu areálu, to se ovšem nepodařilo. Oficiálně se město dočkalo stálé letecké posádky až po mnichovské dohodě. Úředně bylo uvedeno do provozu 15. 11. 1938, k úplnému dokončení komplexů došlo až v polovině roku 1940, ale to již pro německé jednotky, přítomné od září 1939.
Vystavěny byly dva komplexy v těsné blízkosti. Prvním byl areál vojenských kasáren, situovaný na pozemku ohraničeném z přední strany ulicemi Čechova a Kpt. Nálepky. Zadní část opisovala linii železniční trati Havlíčkův Brod – Humpolec. Jednalo se o dvoupatrovou budovu pro mužstvo, jejíž hlavní fronta směřovala do nádvoří kasáren (vojenského nástupiště), a budovu ošetřoven s jídelnami, strážnicí a věznicí. Východní úsek lemovaly garáže s dílnami a skladišti s výjezdy k nádvoří. V jihozápadním cípu se nacházela plynová komora a kobka pro úschovnu granátů a osvětlovacích raket. Na západním okraji pozemku stála obytná budova pro důstojníky a rotmistry.
Druhým samostatným komplexem byly prostory vojenského letiště, situované na návrší za městem, které na severozápadní straně ohraničovala nově přeložená hlavní silnice do Humpolce (ta původní přetínala plochu letiště). Zde byly postaveny hangáry s přístavkem garáží, budova velitelství s kontrolní věží, ohřívárna vody a olejů, hangáry a ubikace.
Do dnešních dnů se z významné vojenské základny dochovalo jen málo. Svou funkci plnila po celou 2. polovinu 20. století, po zániku povinné vojenské služby v roce 2005 však již nenalezla nové využití. S ohledem na regionální historii by bylo potěšující, kdyby se podařilo zachovat alespoň budovu velitelství s kontrolní věží, která by mohla připomínat smutnou, avšak významnou etapu dějin, jichž byl Brod důležitou součástí.
Dana Schlaichertová, 2025
Literatura
Pavel Petr. A blankyt potemněl.. (výstavba letišť, letecké jednotky a výcvik pilotů na česko-moravském pomezí v letech 1935 až 1938), In: Pomezí Čech, Moravy a Slezska. Litomyšl, 2012, s. 87-138.
Dana Schlaichertová. Architektura a urbanismus Havlíčkova Brodu 1848-1938. Olomouc, Katedra teorie a dějin umění FF UP, 1998, Diplomová práce, s. 84-87.
Dana Schlaichertová. Kasárna pro těžkou bombardovací peruť o dvou letkách. In: Aleš Veselý (ed.). Příběhy brodských domů. Havlíčkův Brod, Galerie výtvarného umění v Havlíčkově Brodě, 2016, s. 230-235. ISBN 978-80-904726-9-3.
Prameny
Archiv Kasáren pozemního vojska Havlíčkův Brod - soukromý archiv.
Státní okresní archiv Havlíčkův Brod, fond Archiv města Havlíčkův Brod. karton 430-432.

















