V souvislosti se vznikem krajských samosprávných celků byla havlíčkobrodská knihovna, jejíž historie sahá až do roku 1894, v roce 2002 transformována na knihovnu krajskou. Její rozšířené funkce zákonitě vyžadovaly i větší prostory. V roce 2003 zastupitelstvo Kraje Vysočina jako zřizovatel rozhodlo o vyhlášení veřejné architektonické soutěže na budovu knihovny.
Vypsalo ji v dubnu 2006 a za místo výstavby určilo jihozápadní část areálu okresní nemocnice. Konkrétně mohl být pro novou knihovnu využit a rozšířen stávající objekt ortopedie, dříve chirurgické tuberkulosy (HB-2623), nebo měla na místě demolovaného objektu vzniknout novostavba. Předložený projekt měl počítat s rozpočtem ve výši přibližně 175 milionů korun.
Do soutěže bylo přihlášeno čtyřicet návrhů z pěti evropských států, z nichž pět postoupilo do druhého kola. Vítězný návrh ateliéru htsA (Aleš Tomášek, Robert Seidl a Ivo Hermann) počítal na užitné ploše 4600 m2 s výstavbou nízkoenergetické stavby zapuštěné do terénu, jejíž konstrukci měl tvořit železobetonový skelet. Prosklená budova s jednoduchým vnitřním členěním a zelenou střechou byla do konce roku 2009 dovedena do fáze dokončeného projektu a získala stavební povolení. V roce 2014 se však krajské zastupitelstvo rozhodlo původní záměr zrušit.
Krátce na to byl na základě jednání s Městem Havlíčkův Brod, které se novostavbu knihovny zavázalo spolufinancovat, vybrán stavební pozemek využívaný do té doby jako parkoviště. Návrh nové knihovny s parkovacím domem vytvořil v roce 2016 na přímou objednávku investora Atelier 02 Milana Stejskala, následně projekt převzal Artprojekt Jihlava architekta Petra Holuba, který jej ke škodě výsledné realizace pozměnil – došlo především k úpravě vzhledu průčelí, využití zeleně na obou bočních fasádách a změně dispozice kavárny. Základní kámen ke stavbě byl položen 20. srpna 2018.
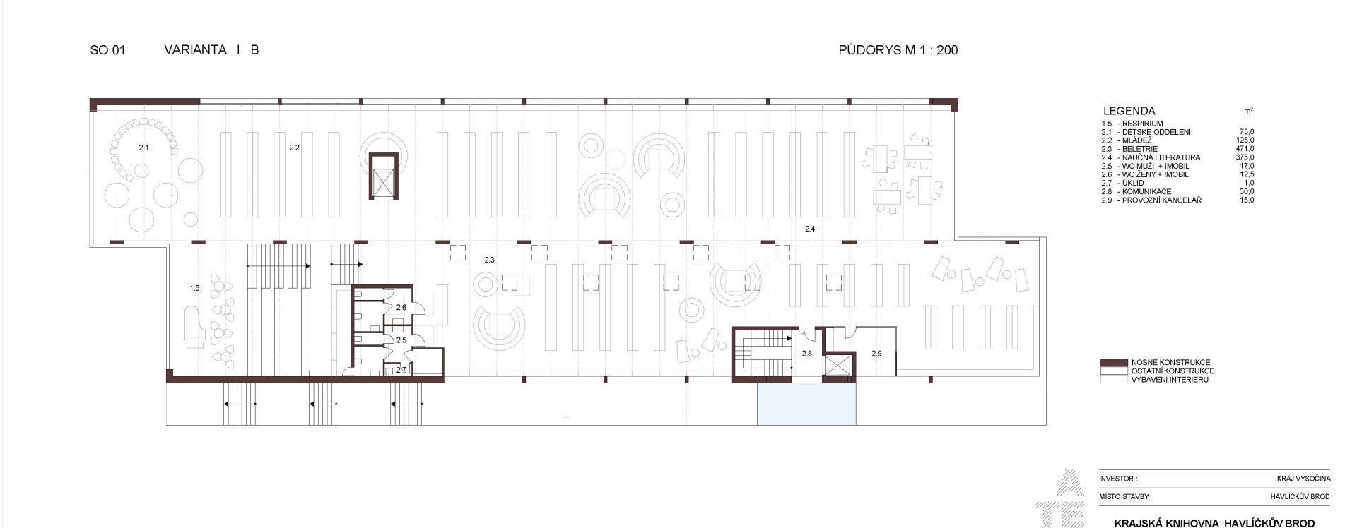
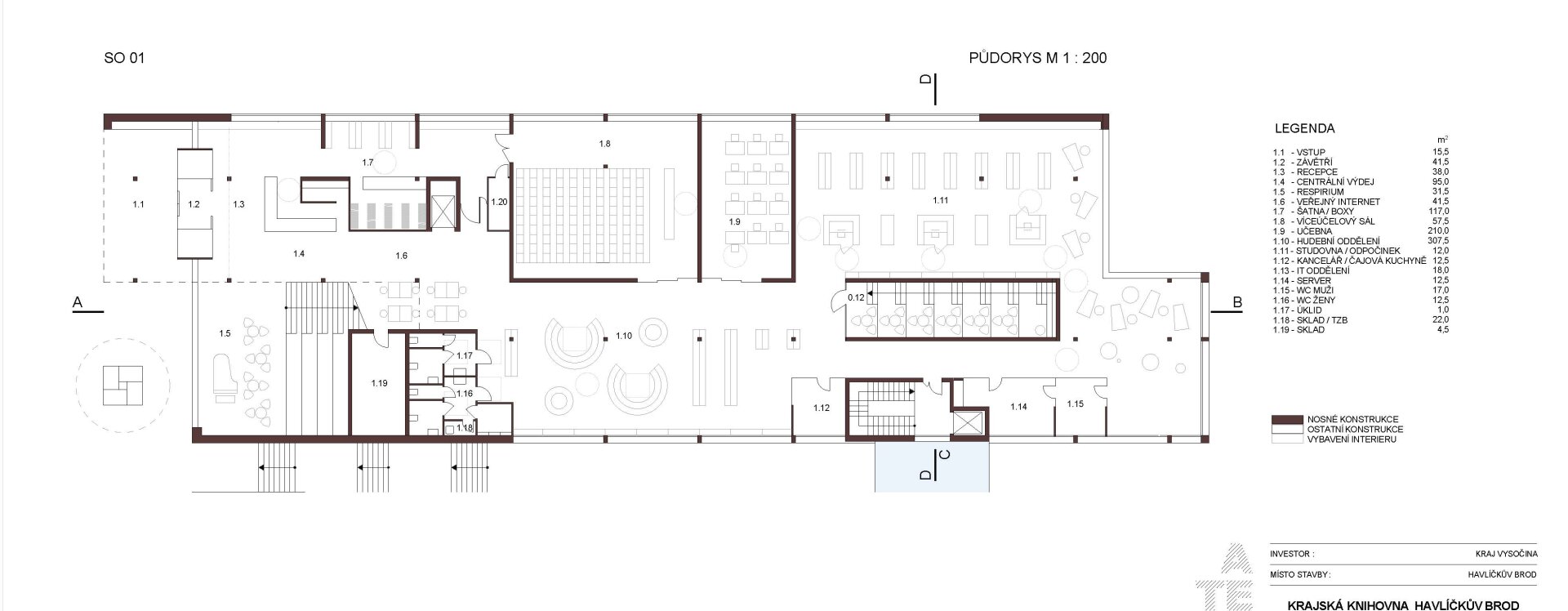
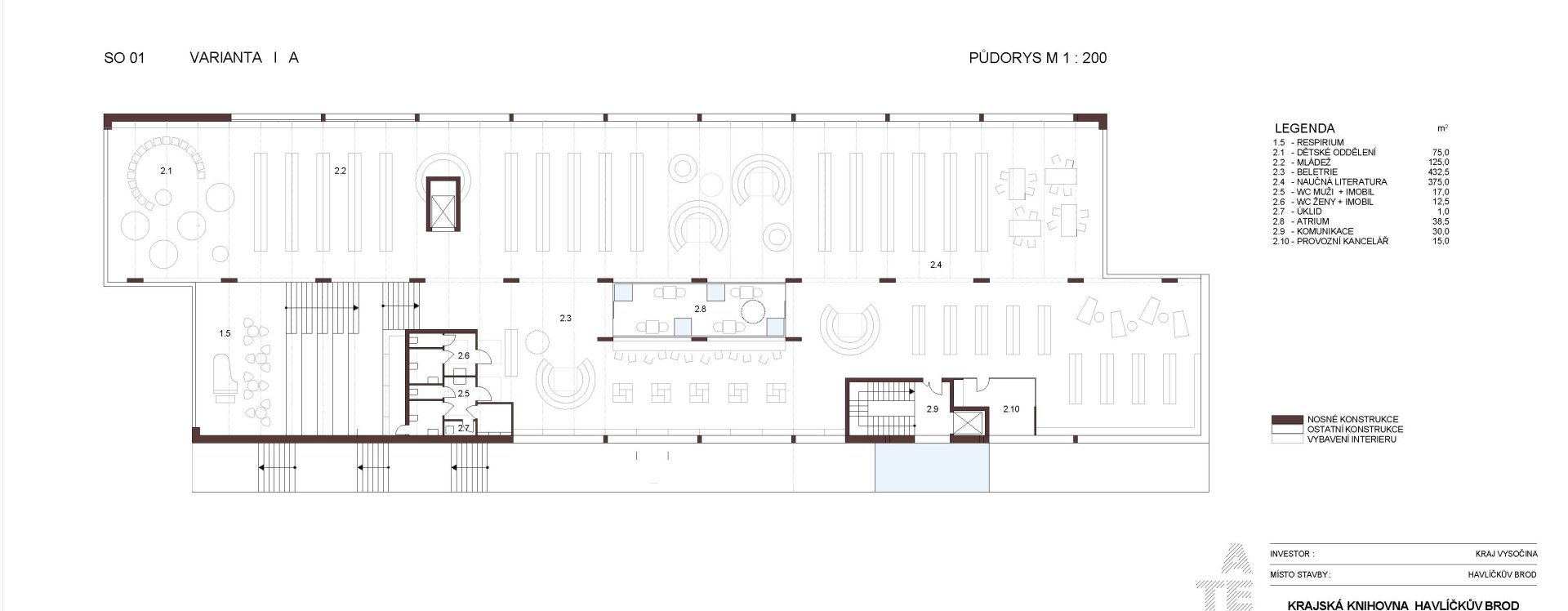
Prostorový koncept knihovny a parkovacího domu tvoří dvojice kvádrů orientovaná kratší stranou v ose sever–jih. Severní prosklené vstupní průčelí knihovny se otevírá do ulice Žižkova, jižní se obrací směrem k Sázavě. Boční zelené fasády tvoří prefabrikované betonové dílce kombinované s pásovými okny a horizontálními pásy vegetace, která v průběhu roku mění svůj vzhled. Třípodlažní budova má jedno podzemní (provozní) a dvě nadzemní podlaží. Kromě otevřených variabilních interiérů s multifunkčním sálem a velkého schodiště s amfiteátrem a zelenou stěnou budova disponuje také střešní terasou, která funguje jako letní čítárna.
Přestože byla stavba dokončena v plánovaném dvouleté termínu, veřejnosti se v plném rozsahu otevřela kvůli omezením způsobených epidemií Covid-19 až červnu roku 2021. Objekt získal čestné uznání v rámci soutěže Stavba roku Kraje Vysočina.
Aleš Veselý, 2025
Literatura
Krajská knihovna Vysočiny. Havlíčkův Brod, 2020.
Krajská knihovna Vysočiny – budova KKV, Havlíčkův Brod. In: Stavba Vysočiny. Dostupné z: https://www.stavbavysociny.cz/stavba-roku/archiv-souteznich-staveb/stavba-roku-kraje-vysocina-2020/krajska-knihovna-vysociny---budova-kkv-havlickuv-brod [cit. 15. 5. 2025]
Ivana Štrossová. Mozaika z historie a současnosti veřejné havlíčkobrodské knihovny 1894-2014. Havlíčkův Brod, Krajská knihovna Vysočiny, 2014. ISBN 978-80-260-7442-7.
Prameny
Městský úřad Havlíčkův Brod, archiv Stavebního úřadu. sv. č. p. 4344.

























