Již před první světovou válkou se Okresní záložně hospodářské podařilo usídlit na prestižní adrese – přímo na německobrodském náměstí. Stala se vlastníkem měšťanského domu U Modré hvězdy (č. p. 168) v jeho severovýchodním rohu, čímž se dostala do těsné blízkosti svého hlavního místního rivala – městské spořitelny. V poklidné maloměstské atmosféře působila záložna v historické památce až do počátku 30. let 20. století.
Ke změně došlo, když její hlavní konkurent tvrdě, i přes zamítavé postoje památkového úřadu a odpor široké veřejnosti, prosadil za podpory města výstavbu první moderní budovy na náměstí – nové městské spořitelny (1933) (HB-91).
V této atmosféře, pouhý rok po dokončení spořitelny, koupila záložna sousední domy a následně oficiálně oznámila rozhodnutí postavit novou budovu na místě dvou památkově chráněných objektů.
Plány pro dvoupatrovou polyfunkční budovu s moderním hladkým průčelím předložili etablovaní pražští architekti, „specialisté na výstavbu záložen“, František Stalmach (1903–1985) a Jan Svoboda (1903–1985) již v dubnu 1934. Proti návrhu se okamžitě zvedla téměř jednotná vlna nevole – tentokrát již nejen místní patrioti a Státní památkový úřad jako poradní orgán, ale i Rada města jako výkonná složka stavbu odmítli.
Záložna se však nevzdala. Přijala kompromisní řešení (7. 5. 1934) v podobě nových plánů na jednopatrovou budovu, zakončenou dvěma štíty, na jejichž základě Státní památková péče byla ochotna vydat povolení k likvidaci původních objektů (7. 2. 1935) A začalo se bourat.
Nečekaný zvrat v celé kauze nastal o měsíc později, kdy na svou funkci abdikoval dlouholetý starosta, člen strany sociálně-demokratické JUDr. Robert Neuern. „Důvodem rezignace bylo vzrůstající nedorozumění mezi jednotlivými stranami na radnici.“ Jak velký vliv na jeho dobrovolný odchod měla i „kauza“ výstavby záložny, která se až nestandardně probírala v místním tisku, nevíme. Fakt je ten, že s jeho odchodem a nástupem nového starosty (16. 3. 1935) Ludvíka Mareše, civilním povoláním truhláře, zástupce živnostenské strany, se situace rapidně změnila.
Okresní záložna téměř okamžitě oživila svůj boj o dvoupatrovou budovu a byla ochotna využít i tíživé situace mnoha obyvatel města, způsobené hospodářskou krizí.
V dubnu 1935 předkládá Radě města nové plány s tím, že „po jejich schválení okamžitě začnou se stavbou v zájmu zaměstnanosti (dělnictva i živnostnictva)“. V důsledku opětovného zamítavého stanoviska Rady města záložna 6. 5. 1935 zcela zastavuje demoliční práce na původních domech a dělníky propouští. Reakce místních živnostenských sdružení, jistě notně podpořených stavebníkem, rezonuje celým městem. V dopisech samosprávě svorně vyčítají její bezohlednost k lidem, kteří ztratili práci pro „nějakou bezvýznamnou památku, která v tomto případě vůbec neexistuje, [je tu jen] řada shnilých, ztrouchnivělých, byť i na pohled v pořádku jsoucích baráků“. Obec si v jejích očích počíná, „jako by na př. bylo zničení památek staré Florencie nebo antického Říma“. Cožpak město nemůže „benevolentněji postupovati v zájmu výstavby města a nutného zaměstnání pro drobné živnostnictvo“?
Za pouhých sedm dnů od zastavení prací (13. 5. 1935) starosta dopisem úpěnlivě žádá Státní památkový úřad pro Čechy v Praze o nové stanovisko. Neopomíná zdůraznit, že se řemeslníci „shromažďují denně na staveništi záložny i na městském úřadě a naléhavě dožadují se vyřešení věci“.
Památkový úřad ve svém oficiálním vyjádření s ohledem „na sociální otázku celé kauzy“ prohlašuje, že „sice neopustil od doposud hájeného stanoviska, […] nečiní [však] dalších námitek proti zřízení druhého patra jakožto patra atikového se dvěma valbami sedlových střech za touto atikou“. Na základě tohoto rozhodnutí je během několika dnů (16. 5. 1935) vydáno nové – nikoli však konečné – stavební povolení. Poslední ústupek záložně učiní Rada města v září 1935, když odsouhlasí, aby se na fasádu do druhého patra vrátila opět pouze atika.
Přes mnohé vypjaté chvíle byla nová budova záložny v květnu 1936 zkolaudována, a to v podstatě podle plánů z dubna 1934. Dokonce i podoba fasády se vrátila k počátečnímu řešení. Jediný kompromis zde oproti původnímu návrhu nastal „jemným zvlněním“ v linii atiky druhého patra, aby stavba získala požadovanou „dostatečnou členitost“.
Z dnešního pohledu vidíme, že se státní památkové péči nepodařilo uchránit dva historicky hodnotné objekty ani prosadit návrh respektující „rytmus“ a výškovou hladinu náměstí. Jako solitér však vznikla stavba, řekněme solidní, s mimořádně elegantním interiérem prosvíceným svrchu, které nechybí určité umělecké kvality.
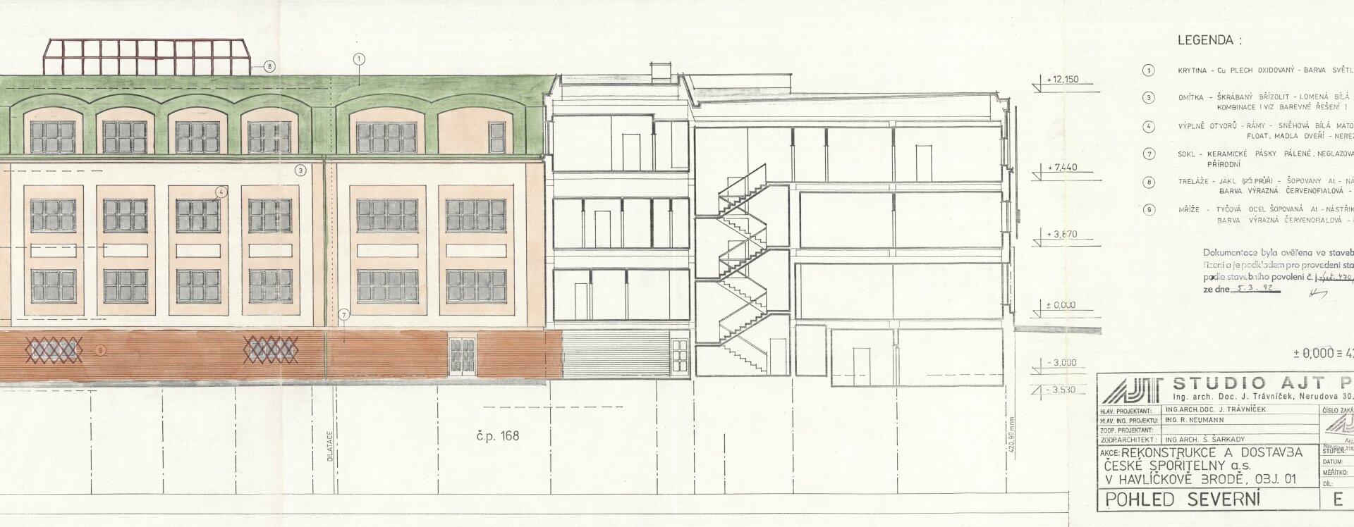
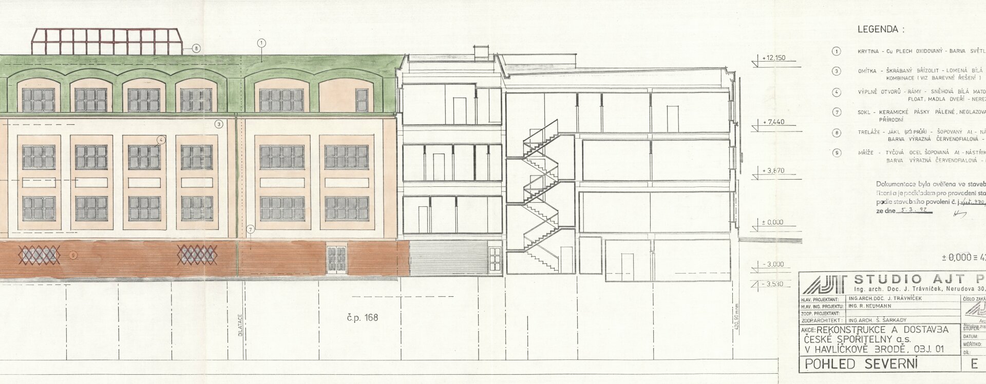
Mnohem smutnější okamžiky pro náměstí a budovu nyní již České spořitelny nastaly o necelých šedesát let později, během její rozsáhlé rekonstrukce (1992–1993) podle návrhu architektonického studia A. J. T Praha, a to na základě stanoviska Památkového ústavu Pardubice, který souhlasil „s architektonickým pojednáním průčelí, které je lépe přizpůsobeno celému výrazu náměstí, než je stávající fasáda“. Interiér z této přestavby však dlouhou dobu nepřečkal. Jeho poslední změna proběhla v roce 2015 dle projektu architekta Zbyňka Zavřela z ateliéru K4.
Dana Schlaichertová, 2025
Literatura
Dana Schlaichertová. Okresní záložna hospodářská v Německém Brodě. Praha, Artefactum, 2024, s. 252-261. ISBN 978-80-88283-96-6.
Petr Horák. Proměny Havlíčkova náměstí v Havlíčkově Brodě, In: Havlíčkobrodsko. Havlíčkův Brod, 2011, 25, s. 7-59.
Alena Kašparová. JUDr. Robert Neuern - starosta německobrodský, In: Havlíčkobrodsko. Havlíčkův Brod, 2008, 22, s. 132-141.
Dana Schlaichertová. Architektura a urbanismus Havlíčkova Brodu 1848-1938. Olomouc, Katedra teorie a dějin umění FF UP, 1998, s. 80-82.
Miloš Tajovský. Havlíčkův Brod: fragmenty z historie. Havlíčkův Brod, Tiskárny Havlíčkův Brod, 2015, s. 159-163. ISBN 978-80-903451-6-4.
Dana Schlaichertová. Okresní záložna hospodářská. Havlíčkův Brod, Galerie výtvarného umění v Havlíčkově Brodě, 2016, s. 114-119. ISBN 978-80-904726-9-3.
Prameny
Městský úřad Havlíčkův Brod, archiv Stavebního úřadu. č. p. 168.
Státní okresní archiv Havlíčkův Brod, fond Archiv města Havlíčkův Brod.
Státní okresní archiv Havlíčkův Brod, fond Sbírka map a plánů. X/25.
Pamětní kniha Německého Brodu II, Státní okresní archiv Havlíčkův Brod, fond Městský národní výbor Havlíčkův Brod, Městský národní výbor Havlíčkův Brod. 1930-1969, s. 154-156.

















































