Budování objektu, dříve známého jako obchodní dům Centrum, později Potraviny Mana, souviselo s výstavbou v prostoru sídliště Smetanovo náměstí I. (HB-VP-SN1). Sídliště o 282 bytových jednotkách těsně navazuje na historické jádro města a je uzavřeno mezi gotické kamenné hradby s baštami a náměstí s převážně barokní zástavbou městských domů. Jeho výstavbě ustoupila řada historických objektů zbořených kvůli dlouhotrvající bytové krizi, se kterou se město ve 20. století potýkalo. Obchodní centrum sousedí s památkově chráněným městským domem s barokní fasádou a zdobeným štítem, dále budovu postavenou na původní dvojici parcel vymezují městské hradby a bytové domy ukončující ulici V Rámech.
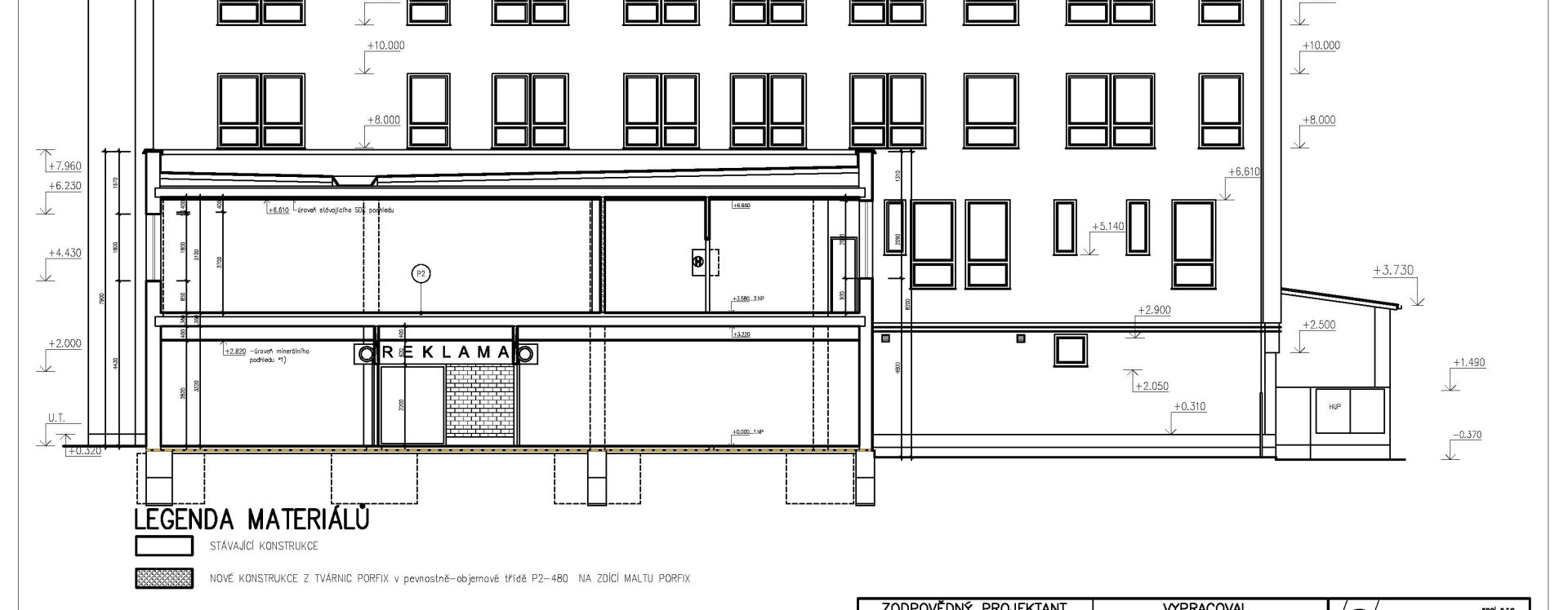
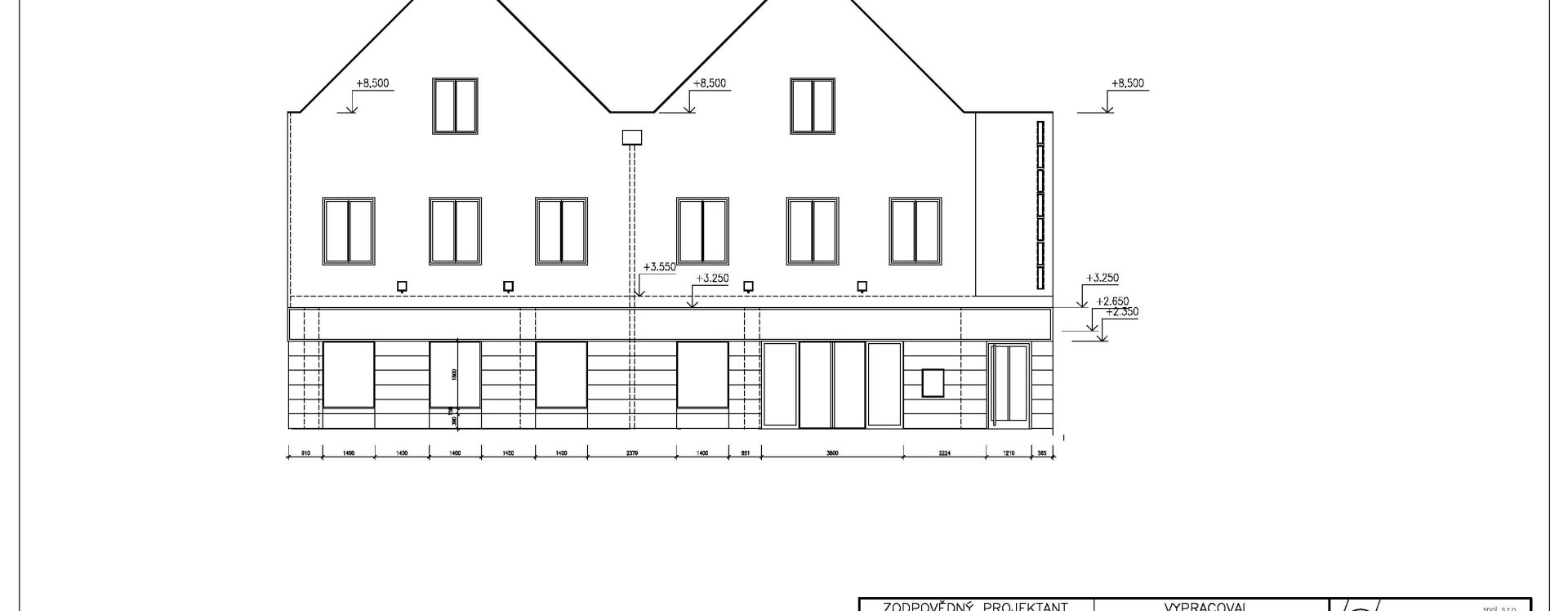
Sídliště i jeho občanskou vybavenost projektoval architekt Lubomír Driml z pardubické pobočky Stavoprojektu. Budovu obchodního domu navrhl až před dokončením bytové výstavby v roce 1977. Driml navázal na výtvarné architektonické prvky domů sídliště Smetanovo náměstí I. Fasádu dvoupodlažního obchodního centra rozčlenil do tří souměrných částí odkazujících na původní místní uspořádání. Přízemí s prodejnou potravin osadil skleněnými výlohami procházejícími po celé délce budovy, pro druhé patro s mléčným barem zvolil pásy vysokých skleněných oken. Nejvýraznějším architektonickým prvkem jsou pravidelné trojúhelníkové štíty, které výškově navazují na vedlejší historické městské domy. Architekt je záměrně ponechal bez jakéhokoli výtvarného detailu, přiblížil se však postmodernímu a kontextuálnímu architektonickému uvažování. Za povšimnutí stojí původní jižní fasáda, kterou výtvarně propojil s navazujícími bytovými domy vsunul do ní vertikální prvky narušující její jednolitost. Šikmě profilované stěny Driml zakončil ve výšce štítů nepravidelným zkosením, objevuje se zde i prvek vystupujících okenních záklenků. Čtyřpatrová zadní část budovy sloužila pro potřeby skladování zboží, kotelnu a zejména pro 12 bytových jednotek, se kterými bylo od začátku projektu počítáno.
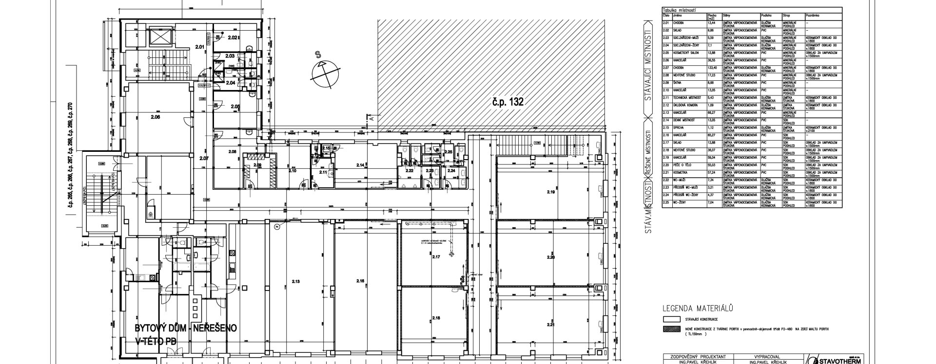
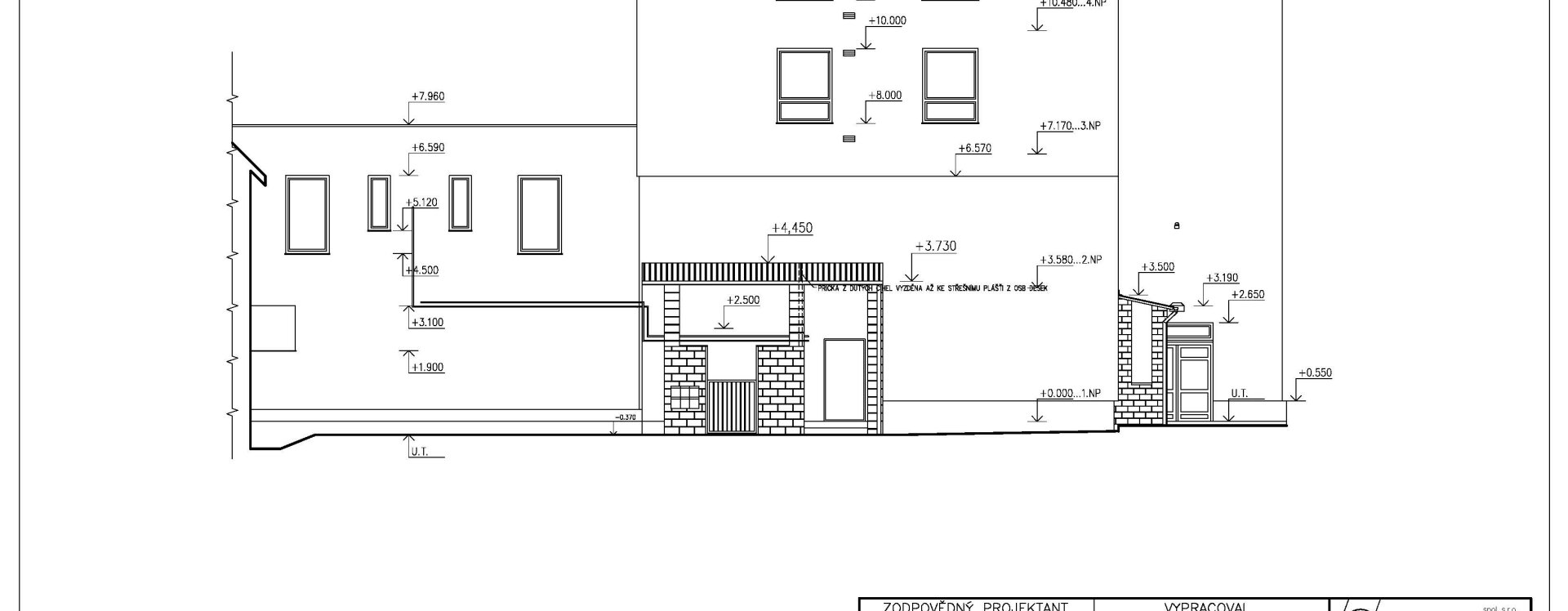
Multifunkční objekt navržený v technologii montovaného skeletu MS 71 byl zkolaudován v roce 1984 a již na počátku 90. let změnil nejen vlastníka, ale i podobu. Svou provozovnu zde v roce 1992 otevřely Potraviny Mana. Nový majitel provedl dílčí úpravy exteriéru, nové nátěry včetně osazení reklamních poutačů a reflexních fólií do oken v prvním patře. Druhé patro prošlo stavebními úpravami v roce 1998 a změnilo se v hernu s non stop provozem. Dnešní podoba stavby pochází z roku 2014 a s původním projektem má již málo společného. Dřívější trojice atikových štítů byla zbourána a nahrazena pouze dvěma štíty s malými okny osazenými ve vrcholu, velké prosklené přízemí je nyní vyzděno a osazeno pojízdnými dveřmi a klasickými okny, stejně jako v druhém patře. Drimlovy architektonické prvky na jižní fasádě byly v rámci přestavby odstraněny a původní záměr stylové návaznosti na sídliště Smetanovo náměstí I. byl touto přestavbou přerušen.
Eliška Jedličková, 2025
Literatura
Lubomír Driml. Havlíčkův Brod - částečná přestavba obytné zóny, In: Architektura ČSR. 1978, XXXVII/6-7, s. 263-266.
Prameny
Městský úřad Havlíčkův Brod, archiv Stavebního úřadu. č. p. 3088.






















