Smuteční síň je situována k novému hřbitovu (HB-VP-NH), který svou lokací severně od Havlíčkova Brodu téměř překračuje hranice města. Autorem původní novostavby smuteční obřadní síně byl Ing. arch. Lubomír Driml z pardubické pobočky Stavoprojektu. Pro budovu zvolil tehdy aktuální modernistický výraz a vzhledem k relativně volnému zadání mohl uplatnit svobodnější architektonické formy. Driml vycházel ze základní myšlenky odkazu na historii sakrálních staveb, zejména v efektivitě přirozeného a umělého světla, a podobně jako řada jeho současníků se snažil nalézt půvab v propojení architektury a okolí.
Drimlova realizace se skládala z dílčí smuteční síně čtvercového půdorysu a na ni ze zadní části navazujícího prostoru technického zázemí. Obřadní místo tvořila dvojice prosklených stěn zpevněná pravidelnými ocelovými pasy. Druhou dvojici stěn zasklívají okna pouze ve vrchní části přímo pod stropem. Betonová nároží stavby vzdáleně připomínají tvar přesýpacích hodin, což může poukazovat na určitý metaforický význam. Vrchní část síně Driml pojal jako monumentální, vysokou a do prostoru předsazenou desku.
Výraz vnitřnímu prostoru udávaly žulou obložené stěny a výhled prosklenými stěnami do okolní přírody mohl poskytnout čistě meditativní prožitky, které ke stavbě tohoto účelu nesporně patří. Rakev s ostatky zesnulého architekt původně zamýšlel umístit před prosklenou stěnu s průhledem do krajiny, do stejné osy jako sochařské dílo Věčný oheň (HB-pc903_5) situované před smuteční síní, čímž by se meditativní charakter obřadní síně ještě umocnil. Ve skutečnosti se však obřady odehrávaly v opačném směru.
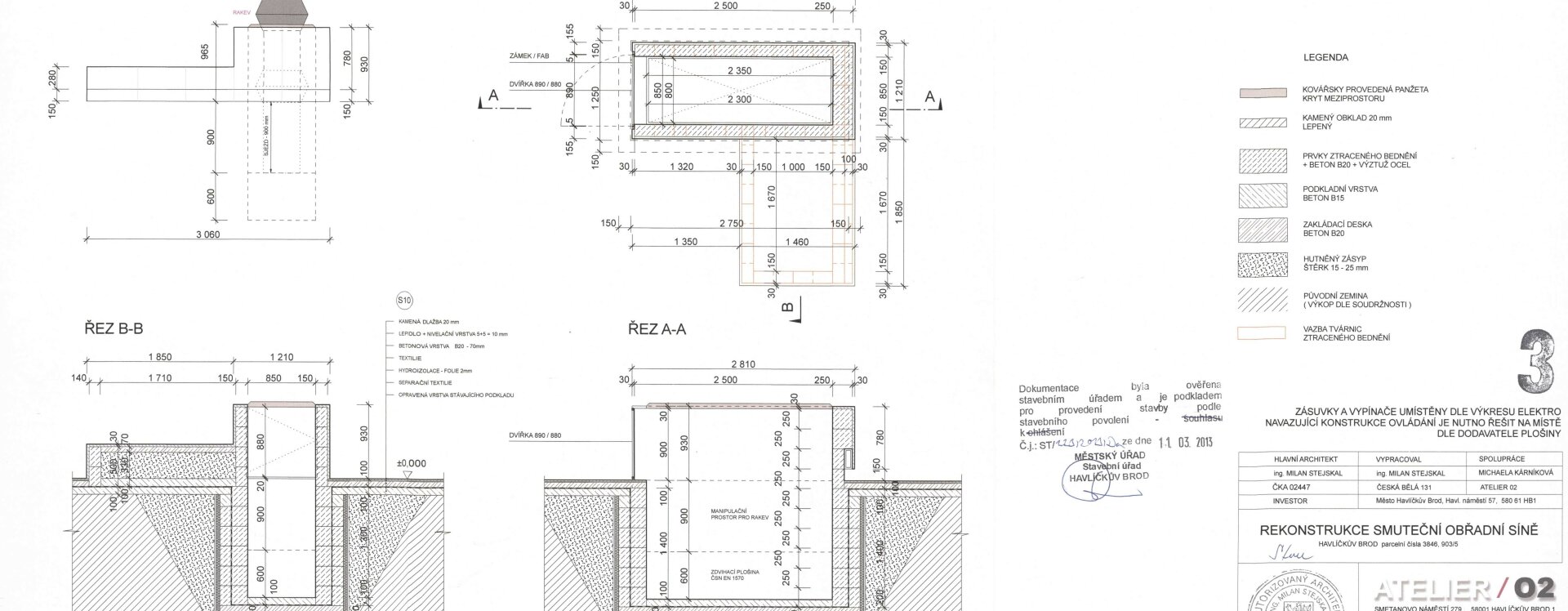
V roce 2013 proběhla rekonstrukce podle návrhu Ing. Milana Stejskala (ATELIER 02) s dostavbou shromažďovacích prostorů a sociálního zázemí pro smuteční hosty. Podle hodnotitelů rekonstrukce ze soutěže Stavba roku kraje Vysočina se jednalo o citlivou rekonstrukci zachovávající podobu původních prvků. S tím však nelze zcela souhlasit, jelikož symptomatické části stavby prodělaly velké stavební zásahy, například se zazdila vrchní část prosklených stěn, zrušil se kontrast mezi subtilností skleněného parteru a jeho nadsazenou střešní deskou a zmizela tvarovaná betonová nároží. Rekonstrukcí se však zvýšila kvalita nabízených služeb směrem k veřejnosti i zázemí pro provozovatele.
Ačkoli se jedná o jednu z nejméně známých realizací Lubomíra Drimla, můžeme původnímu projektu přičíst vysokou architektonickou kvalitu, reflektující realizace smutečních síní a krematorií v 60. letech 20. století v severní Evropě, ale i u nás v Československu.
Eliška Jedličková, 2025
Literatura
Jan Rejchl. K historii vzniku projekčních ateliérů Stavoprojektu ve východočeském kraji, In: Dvacet let práce Stavoprojektu Hradec Králové. Hradec Králové, 1968, s. 3.
Rekonstrukce smuteční obřadní síně Havlíčkův Brod. Dostupné z: https://www.stavbavysociny.cz/component/mtree/stavby/stavba-vysociny-2013/rekonstrukce-smutecni-obradni-sine-havlickuv-brod. [cit. 28. 4. 2025]




















