The street furniture for the centre of Havlíčkův Brod was part of the town’s revitalization projects and was inspired by other Czech towns as well as from abroad. It became an investment which benefits both the town’s residents and its visitors.
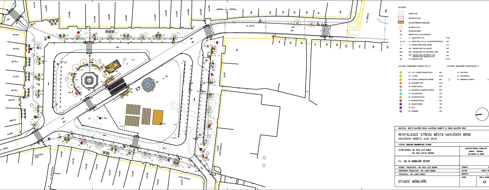
The first area to be addressed was the main Havlíček Square (HB-VP-R-HN) together with the adjoining Dolní street. During the reconstruction, the architects emphasized respect for the historical context of the site and prioritized pedestrians in this area. The upper part of the square around the Marian column was designed as a quiet zone, while the lower part serves as a functional space with a wide range of uses.
The street furniture was designed with an emphasis on functionality, quality, and durability. Standardized benches, bicycle stands, and litter bins—combining simple forms made from hardwood and stainless steel—were subsequently used in other public spaces across the town. The designers also created seasonal furnishings for the square, along with information and traffic elements.
At the same time, several standalone features were created which make a strong contribution to the character of the public space. These include long, semicircular benches surrounding the Marian column, alternating with plaques inscribed with texts by Karel Havlíček Borovský and shaded by a group of trees. This has created a place where it is possible to pause and take a breath—a space that also brings together the square’s symbolic and artistic historical decoration.
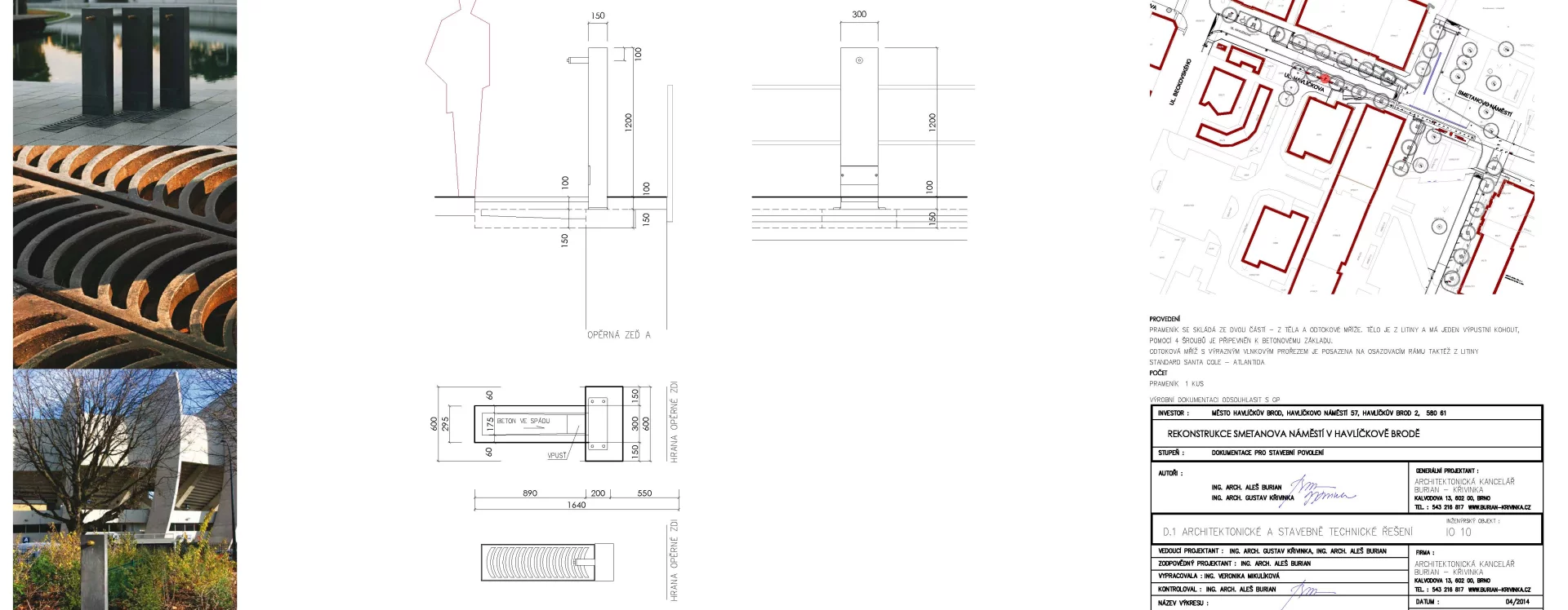
Additional focal points are formed by three fountains made of brass and patinated bronze, located in three corners of the square. Each has a different shape but the same surface texture, which integrates them naturally into the historic setting.
The revitalization of the historic square was followed by a smaller-scale but equally high-quality renovation of Svatovojtěšská street in the section between Havlíček Square and Smetana Square. At its centre runs a strip of smooth, large-format paving stones with a bronze zigzag inlay, which, in addition to its purely aesthetic function, also helps define the space and gently guides movement within it. The basic street furniture in the area is seasonally complemented by simple, robust outdoor exhibition panels used for presentations on regional history and the history of art.
The renovation of the neighbouring Smetana Square (HB-VP-R-SN), whose basic layout dates back to the 1970s (HB-VP-SN2), was more radical and resulted in the creation of a new urban space with extensive greenery and water features.
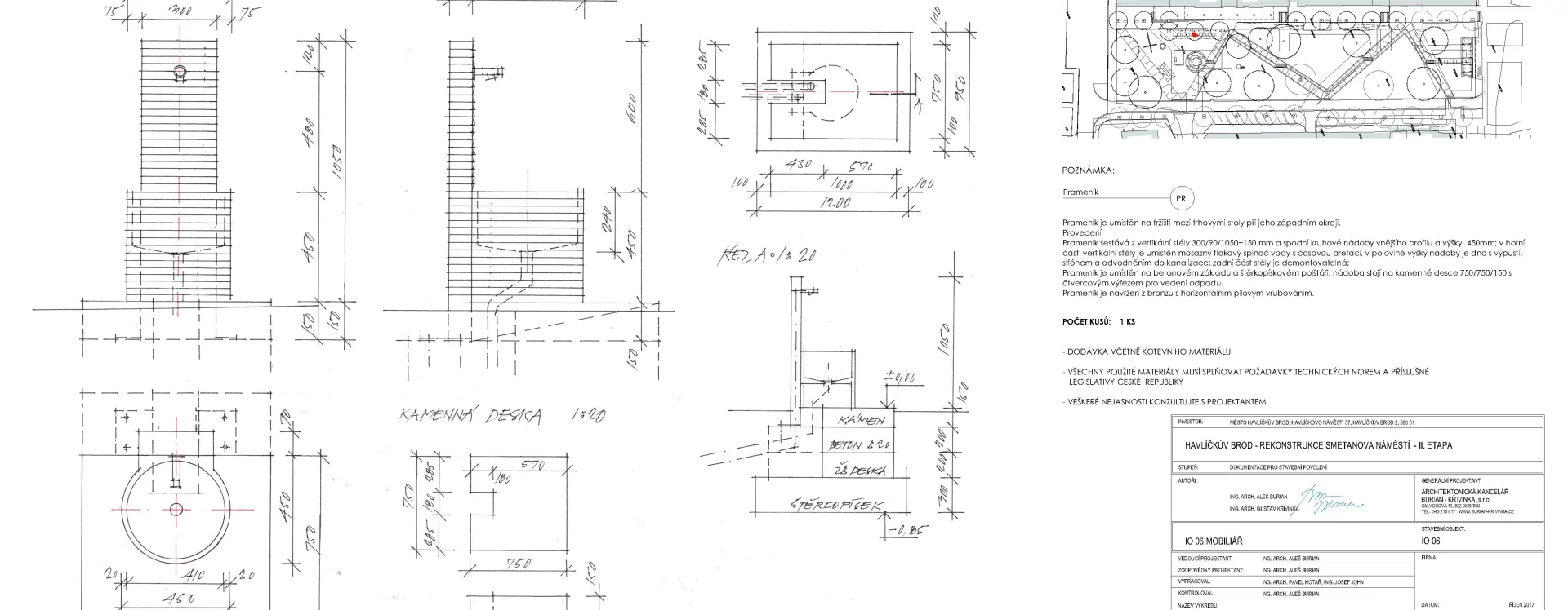
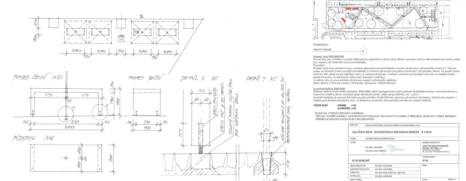
At the upper edge of the area, near Havlíčkova alley, a modernist fountain and a wooden deck for relaxation were installed. At the lower end, around a circular fountain, a space was created that combines modern forms with the traditional function of a town square. There is a memorial here to the Chapel of Our Lady of Sorrows, which was demolished during clearance and redevelopment works in the second half of the 20th century. The memorial consists of two perpendicular perforated rammed-concrete walls. Near the preserved historic water pump, a new water feature and several market stalls made of light-coloured concrete were added.
The relaxed atmosphere of the revitalized public spaces is made possible by the clever use of various paving types, along with discreet metal studs and carefully designed stone and cast-iron bollards. These elements naturally regulate vehicle movement without creating unnecessary obstacles for pedestrians. The thoughtful and comprehensive approach to all functions of the public space represents an excellent investment for the town. Although street furniture is not the primary focus of our attention, it shapes the overall impression of an areae and influences whether we wish to return to it.
Zuzana Trnková, 2025
Literature
Rekonstrukce Havlíčkova náměstí, Havlíčkův Brod, In: BURIAN-KŘIVINKA ARCHITECTS. Available from: https://www.burian-krivinka.cz/projekt/rekonstrukce-havlickova-namesti-havlickuv-brod/. [accessed 3. 9. 2025]
Rekonstrukce Smetanova náměstí v Havlíčkově Brodě – 2. etapa, In: Veřejné zakázky Havlíčkův Brod. Available from: https://zakazky.muhb.cz/contract_display_354.html. [accessed 3. 9. 2025]
Jakub Janáček. Mobiliář v Brodě na náměstí stál miliony korun, In: Havlíčkobrodský deník.cz. 1. 6. 2012. Available from: https://havlickobrodsky.denik.cz/zpravy_region/mobiliar-v-brode-na-namesti-stal-miliony-korun-20120601.html. [accessed 3. 9. 2025]
Martin Vokáč. Havlíčkův Brod na náměstí nešetřil, lavička vyšla i na 136 tisíc, In: iDNES.cz. 29. května 2012. Available from: https://www.idnes.cz/zpravy/domaci/havlickuv-brod-na-namesti-nesetril-lavicka-vysla-i-na-136-tisic.A120529_1785057_jihlava-zpravy_bor. [accessed 3. 9. 2025]
Prameny
Architektonická kancelář Burian-Křivinka. Rekonstrukce Smetanova náměstí v Havlíčkově Brodě - 2. etapa, dokumentace pro stavební povolení. 2017.
Architektonická kancelář Burian-Křivinka. Revitalizace středu města Havlíčkův Brod, zadávací dokumentace stavby. 2009.
























