The construction of the building, formerly known as the Centrum department store and later Potraviny Mana, was connected to the development of the Smetana Square I. housing estate (HB-VP-SN1). The estate, consisting of 282 residential units, lies immediately adjacent to the historic town centre and is enclosed between the Gothic stone town walls with bastions and the square, which is dominated by Baroque townhouses. Its construction required the demolition of numerous historic buildings, a consequence of the prolonged housing shortage the town faced throughout the 20th century. The shopping centre neighbours a protected townhouse with a Baroque facade and ornate gable, while the building itself is defined by the town walls on one side and the residential blocks marking the end of V Rámech street on the other.
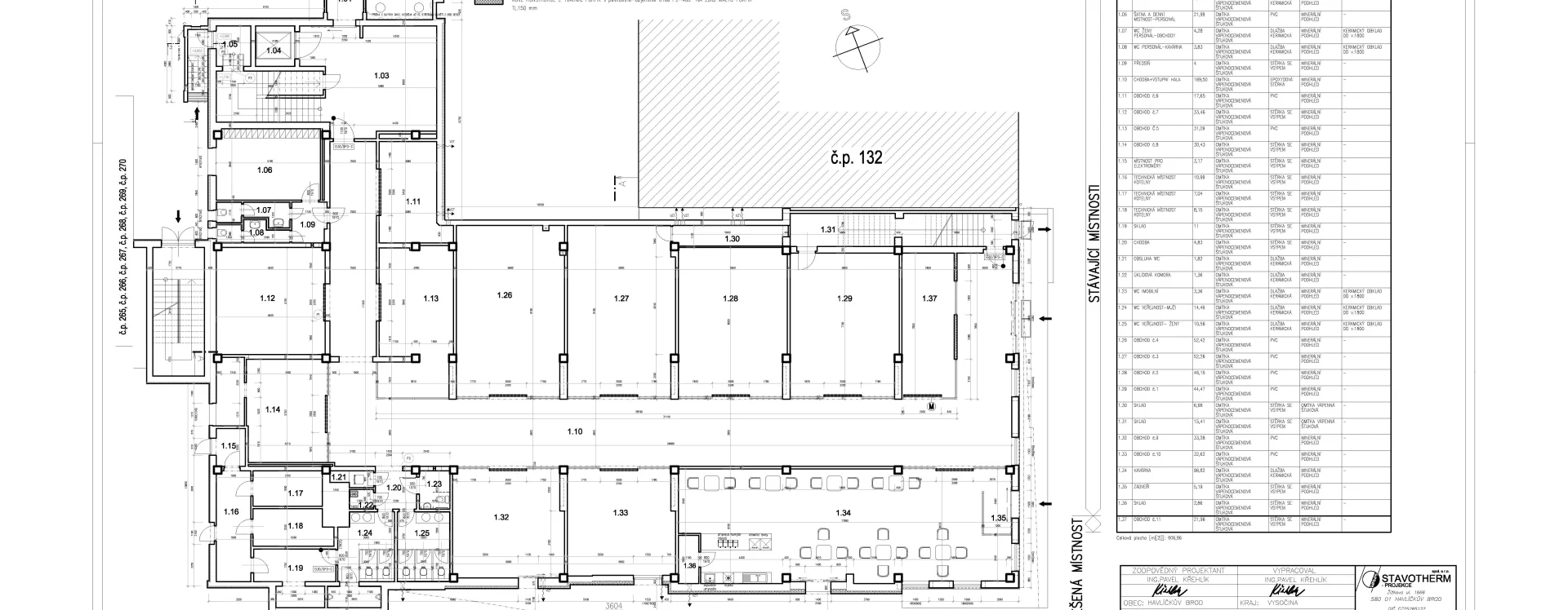
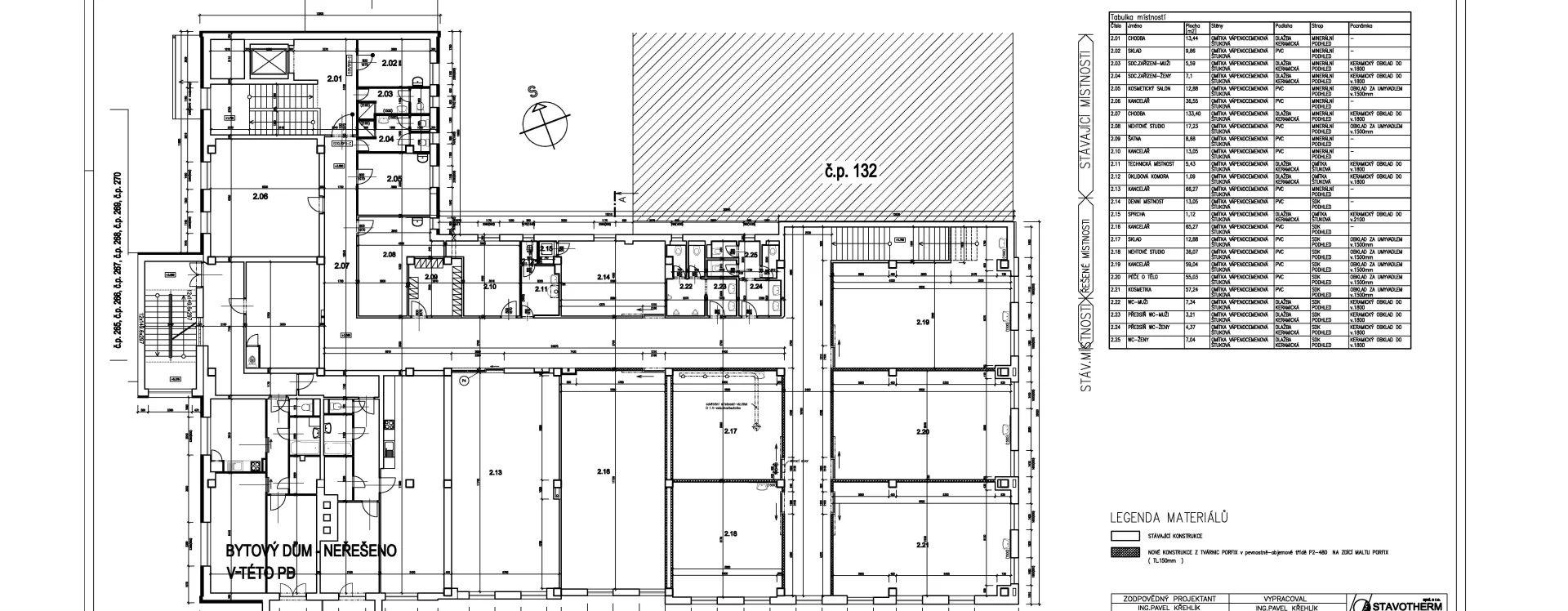
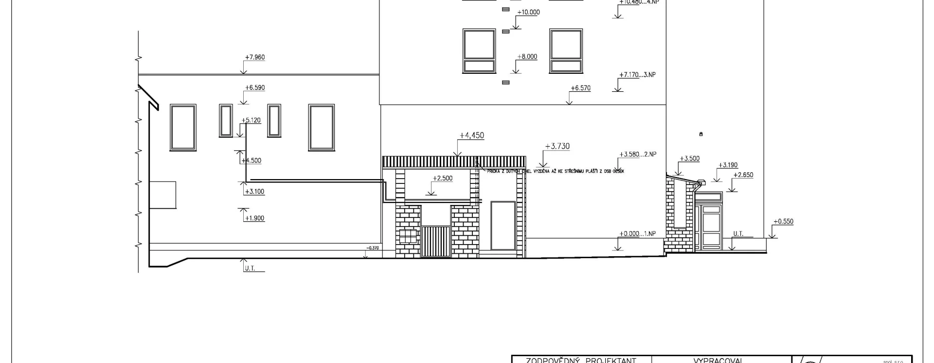
The housing estate and its civic facilities were designed by architect Lubomír Driml of the Pardubice branch of Stavoprojekt. He designed the department store only shortly before the completion of the residential construction in 1977. Driml drew from the artistic and architectural elements of the Smetana Square I. housing estate. He divided the facade of the two-storey shopping centre into three symmetrical sections, referencing the original local layout. The ground floor, housing a grocery store, features full-length glass display windows, while the second floor, containing a milk bar, is defined by bands of tall glass windows. The most striking architectural feature is a series of regular triangular gables which are the same height as the neighbouring historic townhouses. Driml deliberately left them devoid of decorative detail, approaching a postmodern and contextual architectural thinking. Of particular note is the original southern facade, which he visually linked to the adjoining residential blocks by introducing vertical elements that interrupt its uniformity. The sloped walls are capped at gable height with irregular chamfers, and projecting window recesses further articulate the surface. The four-storey rear section of the building was intended for storage, a boiler room and twelve residential units, which had been part of the project from the outset.
The multifunctional building, constructed using the MS 71 prefabricated frame system, was officially approved in 1984, but by the early 1990s it had already undergone changes in both ownership and appearance. In 1992, the Potraviny Mana grocery store began operating there. The new owner made partial exterior modifications, including new paintwork, the addition of advertising signs, and reflective window films on the first floor. The second floor was renovated in 1998 and converted into a 24-hour games hall. The building’s current form dates from 2014 and bears little resemblance to the original design. The former trio of gable attics was demolished and replaced with only two gables with small windows at their peaks. The previously fully glazed ground floor was bricked in and fitted with sliding doors and standard windows, which also occurred on the second floor. Driml’s architectural features on the southern facade were removed during the renovation, interrupting the original stylistic connection with the Smetana Square I. housing estate.
Eliška Jedličková, 2025
Literature
Lubomír Driml. Havlíčkův Brod - částečná přestavba obytné zóny. In: Architektura ČSR. 1978. sv. XXXVII/6-7, s. 263-266.
Prameny
Městský úřad Havlíčkův Brod, archiv Stavebního úřadu. sv. č. p. 3088.






















