From the outset, the design of the Trčkova / V Rámech housing estate (HB-VP-SN1) included provisions for adequate civic amenities. One of the buildings in the new housing estate was a nursery school and crèche located in the very centre of the residential blocks.
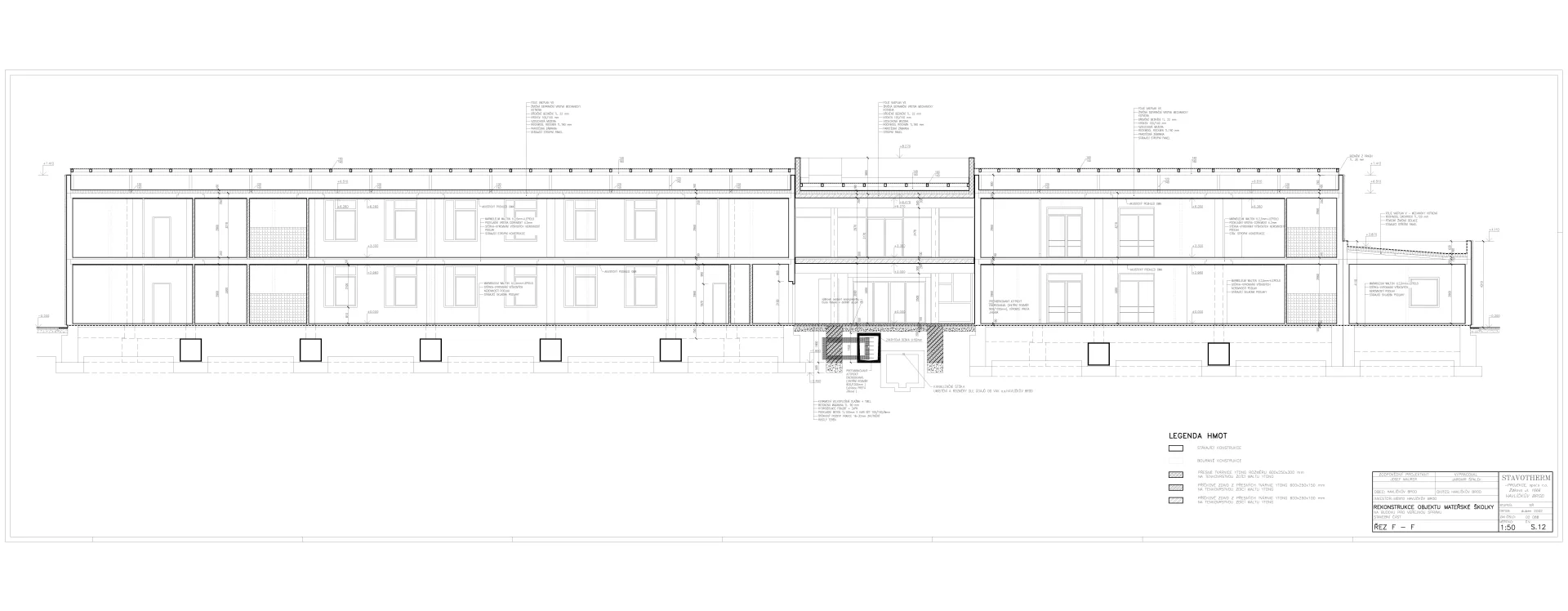
The school complex was originally made up of three separate buildings—a two-story nursery school, a two-story pavilion with a storage room for prams, and a one-story technical building with a gas boiler room. The pavilions formed an L-shape and were connected by covered corridors.
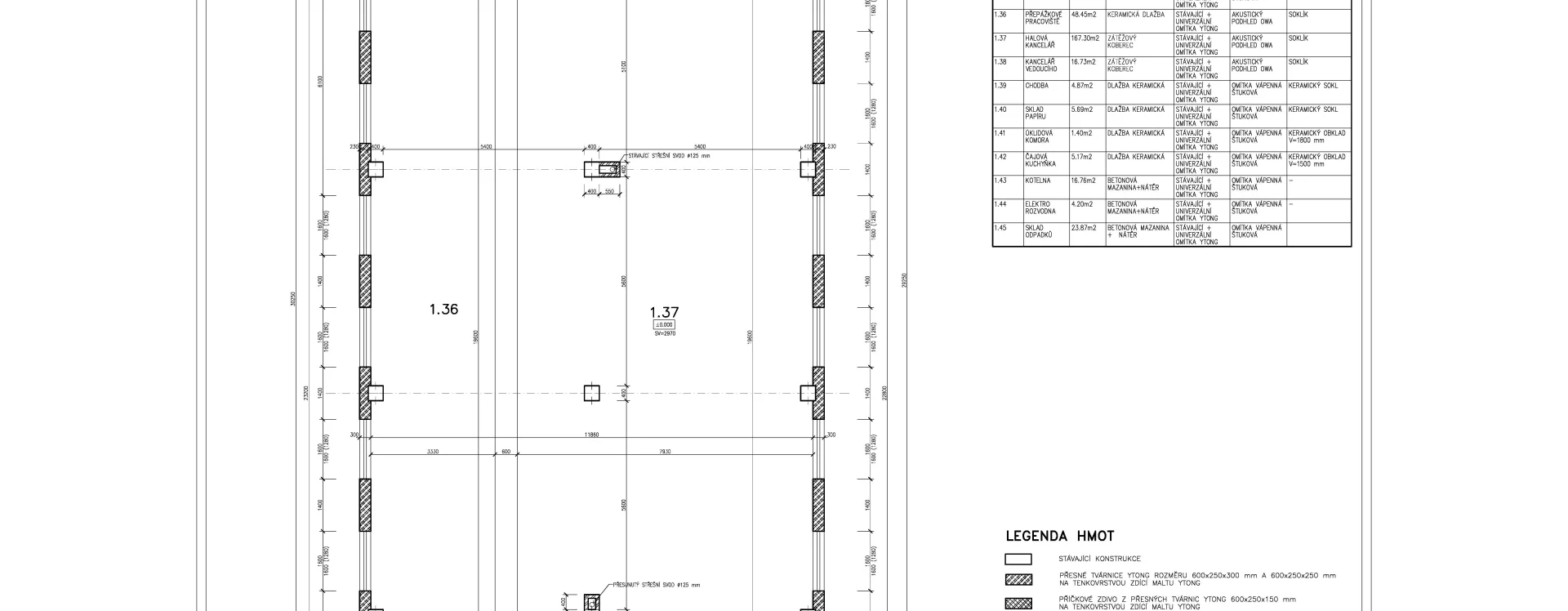
Unlike the relatively creative and free design of the housing estate itself, the civic amenities were subject to national standard designs. Historical records show that the original 1974 project was designed for construction using traditional brickwork combined with prefabricated ceilings. However, the initial contractor rejected this method, leading the investor to approach the company Pozemní stavby Pardubice. The construction approach was subsequently revised, and the standardized MS 71 system with ceramic perimeter walls was eventually adopted. The investor’s department managed to increase the originally proposed capacity of 90 children to a total of 120 in the nursery school and 35 in the crèche.
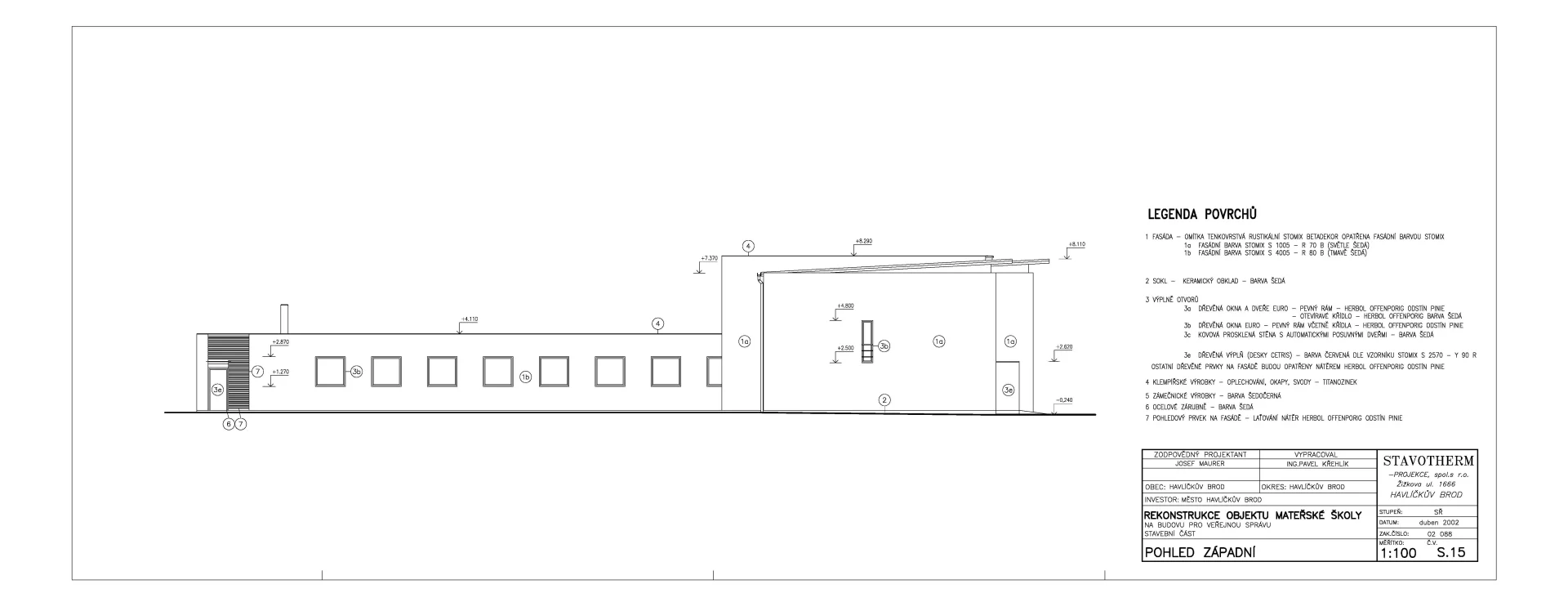
With the change in local government at the beginning of the millennium, Havlíčkův Brod’s town representatives began to consider new premises for the municipal office, which until then had been located in several different places. They decided that the most suitable building for adaptation was the nursery school and crèche complex on V Rámech street. The project retained the original layout based on the combination of three pavilions, although there were initial plans to add another floor. The biggest change to the layout was made to the former connecting corridor, which was converted into a spacious glass-walled communication hall that mirrors the surrounding structures.
The project also included plans to modify the public space on the original nursery school grounds and increase parking capacity, which was opposed by many residents of the adjacent housing estate in a petition in 2002.
Eliška Jedličková, 2025
Literature
Lubomír Driml. Havlíčkův Brod - částečná přestavba obytné zóny. In: Architektura ČSR. 1978.
Bohumila Krčová. Proč právě Rámy?. In: Včela: Listy občanů Havlíčkova Brodu. Havlíčkův Brod, 2002, II/2, p. 8.
Prameny
Městský úřad Havlíčkův Brod, archiv Stavebního úřadu. sv. č. p. 1855.


























