In connection with the establishment of regional self-governing entities, the Havlíčkův Brod library, whose history dates back to 1894, was transformed into a regional library in 2002. The library’s expanded functions naturally required larger premises and in 2003, the Vysočina Regional Council, as its founder, decided to hold a public architectural competition for the new building.
The competition was announced in April 2006, with the southwestern part of the district hospital complex designated as the construction site. The existing orthopaedic building, previously used for surgical tuberculosis (HB‑2623), could either be adapted and expanded for the new library or replaced with a completely new structure on the same site. The submitted project had to operate with a budget of approximately one hundred and seventy-five million crowns.
Forty designs from five European countries were submitted to the competition, five of which advanced to the second round. The winning design by the htsA studio (Aleš Tomášek, Robert Seidl, and Ivo Hermann) envisaged a low-energy building embedded in the terrain with a usable area of 4,600 m2, whose structure was to consist of a reinforced concrete skeleton. The glass building with a simple interior layout and a green roof was completed by the end of 2009 and obtained a building permit. In 2014, however, the regional council decided to cancel the original plan.
Shortly afterwards, following negotiations with the town of Havlíčkův Brod—which agreed to co-finance the new library—a plot formerly used as a car park was selected. The design for the library, including a parking garage, was created in 2016 by Milan Stejskal’s Atelier 02 at the direct request of the investor. The project was later taken over by Artprojekt Jihlava, led by architect Petr Holub, who made changes that weakened the final result, primarily altering the facade, the use of greenery on the side elevations, and the café layout. The foundation stone was laid on 20 August 2018.
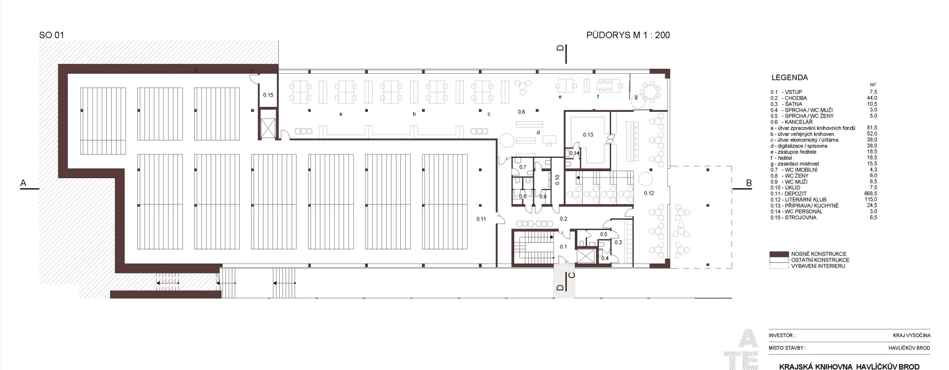
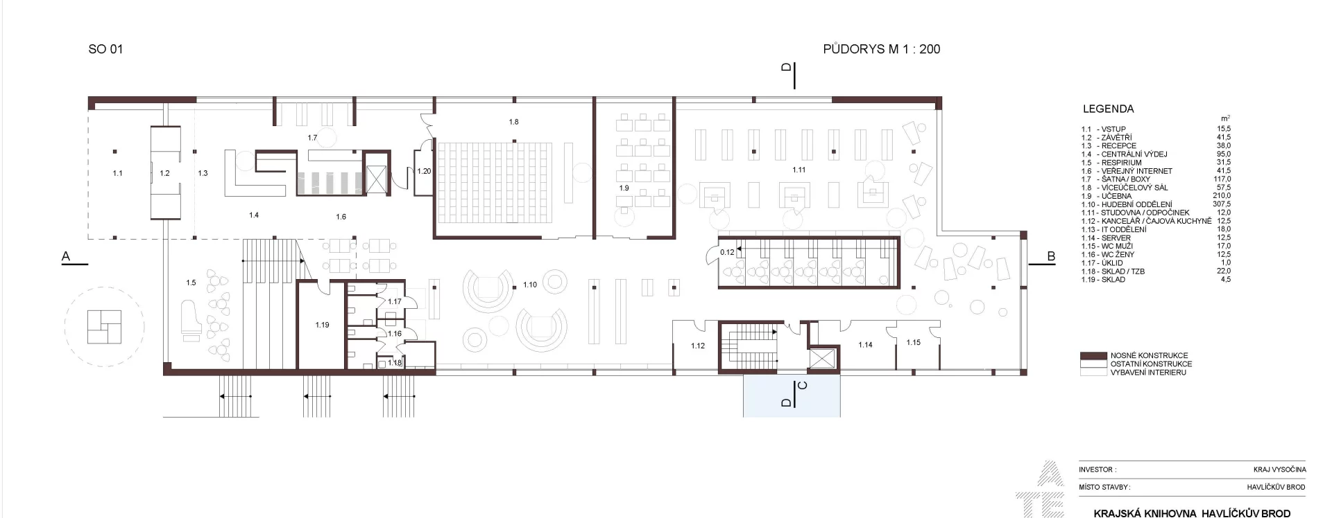
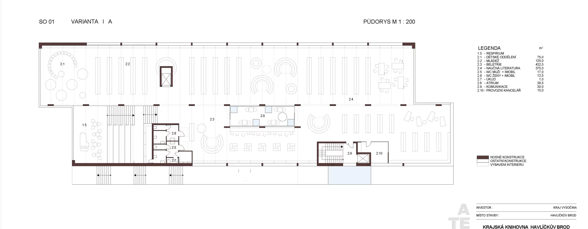
The spatial concept of the library and garage consists of two cuboids, oriented with their shorter sides along a north-south axis. The northern glass entrance facade of the library opens onto Žižkova Street, while the southern facade faces the Sázava River. The green side facades are made up of prefabricated concrete panels combined with ribbon windows and horizontal strips of vegetation which change their appearance throughout the year. The three-storey building comprises one underground (operational) floor and two above-ground floors. It features open, flexible interiors, including a multifunctional hall and a large staircase with an amphitheatre and a green wall. A roof terrace also serves as a summer reading space.
Although the building was completed within the planned two-year deadline, it did not open to the public in its entirety until June 2021 due to restrictions caused by the Covid-19 epidemic. The building received an honourable mention at the Vysočina Region Building of the Year competition.
Aleš Veselý, 2025
Literature
Krajská knihovna Vysočiny. Havlíčkův Brod, 2020.
Krajská knihovna Vysočiny – budova KKV, Havlíčkův Brod. In: Stavba Vysočiny. Available from: https://www.stavbavysociny.cz/stavba-roku/archiv-souteznich-staveb/stavba-roku-kraje-vysocina-2020/krajska-knihovna-vysociny---budova-kkv-havlickuv-brod [accessed 15. 5. 2025]
Ivana Štrossová. Mozaika z historie a současnosti veřejné havlíčkobrodské knihovny 1894-2014. Havlíčkův Brod, Krajská knihovna Vysočiny, 2014. ISBN 978-80-260-7442-7.
Sources
Městský úřad Havlíčkův Brod, archiv Stavebního úřadu. sv. č. p. 4344.

























