The funeral hall is located next to the New Cemetery (HB-HN), which, with its location north of Havlíčkův Brod, almost crosses the town limits. The original new building for the funeral hall was designed by Lubomír Driml from the Pardubice branch of Stavoprojekt. He chose a modernist style for the building and, given the relatively open brief, was able to apply more liberal architectural forms. Driml based his design on the fundamental idea of referencing the history of sacred buildings, particularly in terms of the effectiveness of natural and artificial light, and, like many of his contemporaries, sought to find beauty in the connection between architecture and its surroundings.
Driml’s design consisted of a square-shaped funeral hall with a technical facility area connected to the rear. The ceremonial space was formed by a pair of glass walls reinforced with regular steel strips. The second pair of walls is glazed only in the upper part, directly under the ceiling. The concrete corners of the building vaguely resemble the shape of an hourglass, which may have a certain metaphorical meaning. Driml conceived the upper part of the hall as a monumental, high slab projecting into the space.
The interior was defined by granite-clad walls, while views through the glazed facades to the surrounding landscape offered a distinctly meditative experience, entirely appropriate for a building of this kind. The architect originally intended to place the coffin in front of the glass wall overlooking the landscape, in the same axis as the Eternal Flame sculpture (HB-pc903_5) located in front of the funeral hall, which would further enhance the meditative character of the ceremonial hall. In practice, however, the ceremonies took place in the opposite direction.
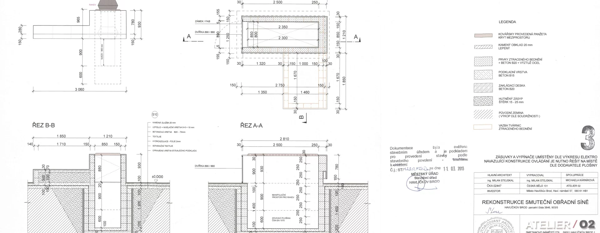
In 2013, reconstruction work was carried out according to a design by Milan Stejskal (ATELIER 02), with the addition of areas to gather in and social facilities for mourners. According to the jury of the Vysočina Region Building of the Year competition, the project was a sensitive reconstruction that preserved the character of the original elements. However, this assessment cannot be fully endorsed as significant interventions were made to key parts of the building; for instance, the upper sections of the glazed walls were bricked up, the contrast between the delicacy of the glass parterre and the raised roof slab was lost, and the sculpted concrete corners were removed. Nevertheless, the reconstruction did enhance the quality of services available to the public as well as the facilities for the operators.
Although this is among Lubomír Driml’s lesser-known projects, the original design can be appreciated for its high architectural quality, echoing the design of funeral halls and crematoria in northern Europe and Czechoslovakia during the 1960s.
Eliška Jedličková, 2025
Literature
Jan Rejchl. K historii vzniku projekčních ateliérů Stavoprojektu ve východočeském kraji, In: Dvacet let práce Stavoprojektu Hradec Králové. Hradec Králové, 1968, p. 3.
Rekonstrukce smuteční obřadní síně Havlíčkův Brod. Available from: https://www.stavbavysociny.cz/component/mtree/stavby/stavba-vysociny-2013/rekonstrukce-smutecni-obradni-sine-havlickuv-brod. [accessed 28. 4. 2025]




















